サンライズ伊奈
〇充実した設備仕様に一新した内装リフォーム!
〇7階・南東向きバルコニーにつき、陽当たり・風通し良好♪
〇コンビニ、スーパー、ドラッグストアが徒歩圏内でお買い物にも便利!
〇住空間が有効に活用できる豊富な収納スペース付き!
〇全居室フローリング施工!
〇お住まい後も安心!24時間緊急受付サービス付き!
〇住まいのことならトータルサポートの朝日住宅大宮店にお任せ下さい♪

基本情報

種別 マンション
価格 1,280万円
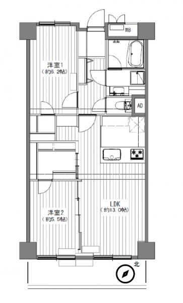
間取り 2LDK
専有面積 61.20m2(18.51坪)
所在階 7階
建築年月 1978年11月(築47年)
所在地 北足立郡伊奈町大字小室 地図を見る
交通
JR東北本線 (宇都宮線) 「蓮田」駅 徒歩16

大宮店

1課 営業主任

担当:長谷川 素之

■担当者コメント

~〇●7階部分・南東向きバルコニー・2LDK・新規新規リフォーム●〇~

詳細情報

物件種目 中古マンション
専有面積 61.20m2(18.51坪)
バルコニー面積・向き 7.74m2(2.34坪) 南東向き
総戸数
建物構造 SRC造 地上8階建て
所在階 7階
建築年月 1978年11月(築47年)
権利 所有権
駐車場 -
管理会社 -
管理形態 日勤
管理費 6,300円/月
修繕積立金 18,700円/月
施工会社
設備
公営水道 / 汚水:公共下水 / 雑排水:公共下水 / ユニットバス / ユニットバストイレ / ガスコンロ 三口 / 電気:あり
備考 市街地が近い / 緑豊かな住宅地 / 都市近郊 / 前面棟無 / 平坦地 / 東南向き / 陽当り良好 / 通風良好 / フローリング / 全居室フローリング / エアコン / 室内洗濯機置場 / 全居室収納 / クローゼット / システムキッチン / 対面式キッチン / グリル / 食器洗乾燥機 / 浄水器 / 浴室乾燥機 / オートバス / 追焚機能 / シャワー / バス・トイレ別 / シャワー付洗面化粧台 / 温水洗浄便座 / 室内洗濯機置場 / バルコニー / 南面バルコニー / 駐輪場 / バイク置場 / エレベーター / エレベーター2基以上 / TVモニタ付インターホン / 火災警報器(報知器) / 内装リフォーム / スーパー 徒歩10分以内 / 小学校 徒歩10分以内 / 整備された歩道 / 眺望良好 / 即入居可
現況 空室
引渡 相談
取引態様 媒介
物件番号 713591823
情報更新日 2025年11月13日
次回更新予定日 2025年11月26日

お問い合わせ先

店名 大宮店
営業時間/定休日 10:00〜19:00 / 火曜日・水曜日
所在地 〒330-0845
埼玉県さいたま市大宮区仲町1-54-3 ビジョナリーⅢ 4階
主な交通手段 JR「大宮」駅東口徒歩3分

物件情報について

  • 地積、建物床面積、仕様に変更が生じる場合があります。
  • 図面と現況が異なる場合には現況を優先します。
  • 物件情報は最新のものをご提供させて頂きますが、万一売約済の場合はご容赦ください。
  • 建築条件付土地は土地売買契約締結後、一定期間内に売主指定の不動産会社もしくは建築業者と建築請負契約を結ぶことが前提となります。
  • 期間中に建築請負契約が成立しなかった場合、土地売買契約は白紙となり、支払った金額は全額返金されます。